Inside our Best Airbnb Aircrete Dome

Tiny houses can be a great investment for Airbnb, but let’s face it, most of them look the same and come with a hefty price tag. This aircrete dome, however, is a game-changer that Airbnb guests can't resist! It’s cost-effective to build and packed with standout features. In this article, we’ll dive into what makes this dome truly unique and why it’s perfect for your next investment.

Exploring Our Latest Dome: A Bold New Chapter in Glamping

We just wrapped up our latest creation in the heart of Arkansas, and we're beyond excited to share it with you! This build was an adventure, packed with creative risks and brand-new design ideas. Spoiler alert: we couldn't be happier with how it turned out. Domes like this have a magnetic charm, drawing travelers from all over, making them stellar investments for Airbnb hosts, glamping enthusiasts, or resort owners.

 

Curious for a peek? Check out our YouTube update and tour of the dome here.

 

Want to book a stay and see more photos? Head over to Airbnb.

Poster

My First Stay: Initial Impressions

I spent about a week in the dome, ticking off the last few items on the punch list, arranging furniture, and tidying up the space. And let me tell you, this dome has a certain magic. It’s the perfect blend of cozy cave vibes and open, nature-inspired living. Even when it was 95 degrees outside with 80% humidity, stepping inside was a breath of fresh, chilled air, thanks to the silent mini-split heat pump. The temperature inside felt uniformly pleasant, and the aircrete walls created a serene hush, muting the outside world.

 

One morning, the AC made things too chilly, so I switched it off while working on my laptop. Time flew, and by 4 p.m., I realized the AC had been off for hours. Despite the blazing sun, the interior stayed impressively cool. The aircrete walls, with their solid R8 insulation value, outperformed my expectations. It's all about that thermal mass and seamless structure—no pesky gaps for air to sneak through. Plus, our high-efficiency thermal pane windows and strategic building orientation (hello, sunset views without the midday heat!) worked their magic. The result? Consistent, comfortable temperatures.

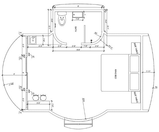
Dome Highlights at a Glance

  • Size: 16’ diameter
  • Construction: 4” thick aircrete bricks
  • Design Features: Three arches, one window
  • Amenities:
    • Bathroom with toilet, sink, and spacious shower
    • Kitchenette with mini fridge, microwave, sink
    • 345 square feet of cozy living space
  • Comforts:
    • Bar top for working or dining
    • Queen-sized bed
    • Convertible couch
    • Comfy chair for lounging
  • Extras: Large windows and a whisper-quiet mini-split heat pump for heating and cooling

The Space: Big Feels in a Compact Design

The bathroom, while snug, feels luxe with a shower that could fit two and those signature curved ceilings that make every moment feel unique. The main living space, complete with a couch, coffee table, and comfy chair, feels surprisingly roomy. The dome’s tall ceilings contribute to a sense of spaciousness, and the clever placement of arches and furniture minimizes any echo you might expect in a round space. The queen-sized bed has ample room on either side, and if this were a permanent living setup, you could easily add a small closet. Waking up under the arch brings a smile—it’s like your own little getaway.

Bringing It All Together: Finishing Touches

Design makes a space, and Ella’s interior design choices did just that. We may have doubted some of her picks during the build, but wow, were we wrong. The oversized globe light in the bathroom, which we worried might be too much, ended up stealing the show. From the round coffee table and soft rug to the arched mirror and wicker pendant light, every detail plays its part. The neutral main structure lets the colorful furniture shine, and we can’t wait to add even more flair with wall art.

Challenges and Lessons Learned

No build is without hiccups, and this project taught us a lot. Originally, we aimed for a 6-week timeline but stretched to about 10 weeks after a few curveballs.

 

The Floor Dilemma

We thought a simple concrete slab would be an easy win—budget-friendly and sleek. But construction left the floor messy, leading to endless cleaning, scraping, and sanding. This delay slowed progress on the kitchen, bathroom, and even the front door installation. In the end, the floor turned out okay, just not as perfect as we envisioned.

 

The Window Surprise

The second hiccup was out of our hands. The company we trusted to craft our beautiful curved windows made them the wrong size, despite us providing exact templates. With our tight timeline, waiting for new windows wasn’t an option. So, we improvised by removing the glazing and crafting custom frames to fit the glass. It worked, but it cost us a week and some extra gray hairs.

Cost

We carfully tracked every cost for this built and are working to cateforize and share the breakdown soon.  Be sure to subcribe to our YouTube channel if you want to see the cost break down when we release it.

Subscribe

Wrapping Up

We may have run a bit over schedule, but all things considered, we’re thrilled with the outcome and the lessons learned. We filmed and documented the entire journey, and we’ll be sharing those insights with our Dome Builders Academy members—where we guide enthusiasts through every step of the Domegaia Building System.

Explore Dome Floor Plans

Diamond Studio Plans: 297 sq ft, 1 dome, 1 bedroom, 1 bath, kitchenette

View Plan

Eden Guest Room Plans: 120 sq ft, 1 arch, 1 bedroom

View Plan

Steve's Home Plans: 382 sq ft, 3 domes, 1 bedroom, 1 bath, kitchen, rooftop

View Plan

Elysian Falls Home Plans: 970 sq ft, 4 domes, 2 bedrooms, 1 bath, kitchen

View Plan

FREE E-BOOK
Aircrete Domes: Guidebook

Includes: overview of the techniques, equipment, designs, construction principles, building process and all the basics on how to build with aircrete.